



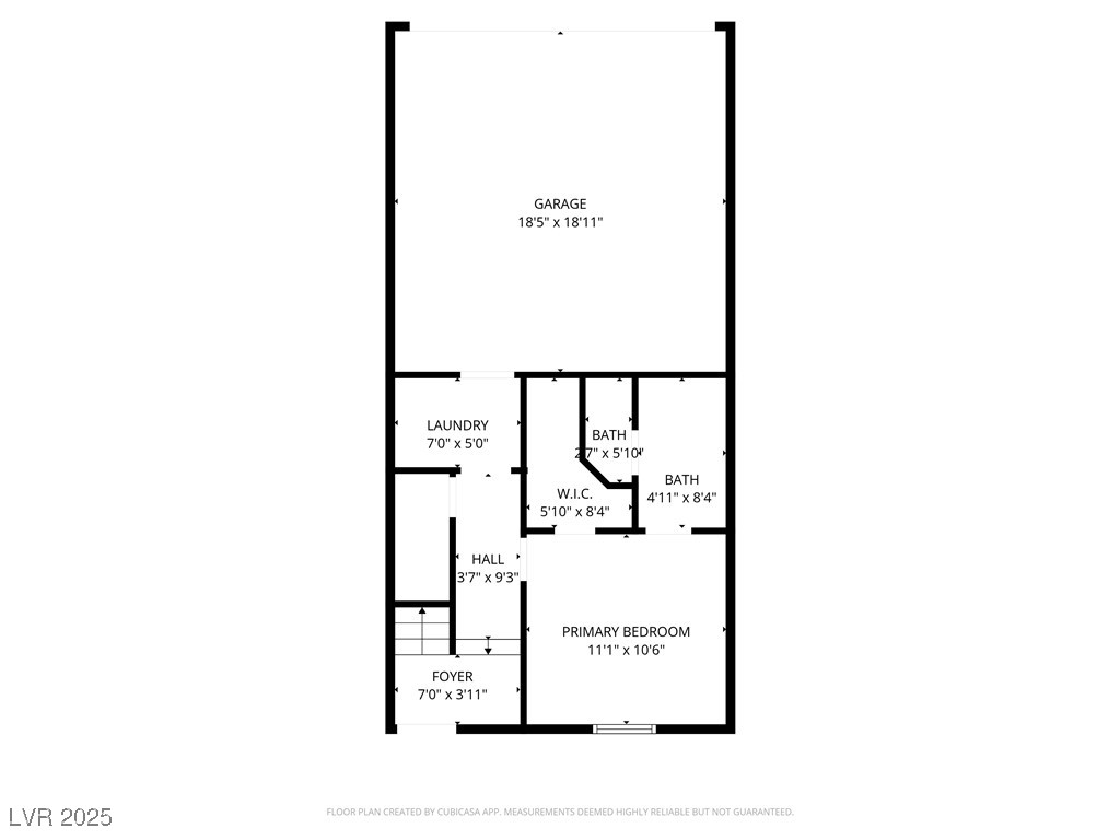
Step inside this multi-story/split level townhome featuring primary bedroom, full bathroom and laundry room all downstairs near the garage. Large storage area under stairs. The second floor features open floorplan with two bedrooms, full bathroom, kitchen, eat in dining area and balcony off the living room. Luxury vinyl plank flooring throughout (no Carpet) and window coverings throughout. Attached two car garage with above head storage that conveys with the property.
| a week ago | Listing first seen on site | |
| a week ago | Listing updated with changes from the MLS® |
Subscribe Now
Sign up for exclusive news & market updates
Compare listings
ComparePlease enter your username or email address. You will receive a link to create a new password via email.
Did you know? You can invite friends and family to your search. They can join your search, rate and discuss listings with you.