2341 Queen Bee CourtLas Vegas, NV 89134




Mortgage Calculator
Monthly Payment (Est.)
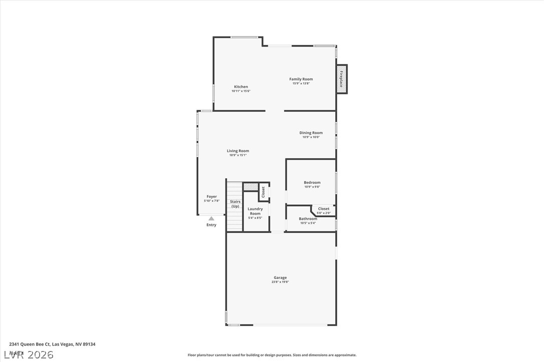
$2,463Come see this recently remodeled open floor plan and vaulted ceiling home, located in the Willow Tree community in Summerlin North. This cul-de-sac property offers 2,132 sq ft with a block-fenced backyard and private in-ground pool (currently empty). Functional floor plan includes a main-level bedroom and full bath, flexible living and dining areas, and an island kitchen with new flooring and fresh interior paint. Large primary suite with additional bedroom space. Primary bathroom includes large tub and standing shower. Large walk in closet. Private backyard with mature landscaping. Two-car attached garage. Approximately 1.5 miles to Downtown Summerlin retail, restaurants, and services. Located near private and public schools. Near Summerlin Trail System access and Summerlin Parkway for east–west connectivity. HOA community. 3D tour and video walkthrough available upon request.
| 6 hours ago | Listing first seen on site | |
| 14 hours ago | Listing updated with changes from the MLS® |
Listing information is provided by Participants of the Greater Las Vegas Association of Realtors. IDX information is provided exclusively for personal, non-commercial use, and may not be used for any purpose other than to identify prospective properties consumers may be interested in purchasing. Information is deemed reliable but not guaranteed. Copyright 2026, Greater Las Vegas Association of Realtors.
Last checked: 2026-02-26 10:02 AM UTC
Did you know? You can invite friends and family to your search. They can join your search, rate and discuss listings with you.